TEL:04-23503355 / FAX:04-23502255
繁中
简中
EN
首頁
認識典雅
關於典雅
專業認證
主要業務介紹
鋁的特性
專屬烤漆場
鋁合金碳竹資材系列目錄
工程案例
鋁合金現代資材系列
鋁合金仿竹資材系列
鋁合金仿木資材系列
雕塑品系列
碳化竹木資材系列
共融式遊具
特殊專案
線上視頻
聯絡我們
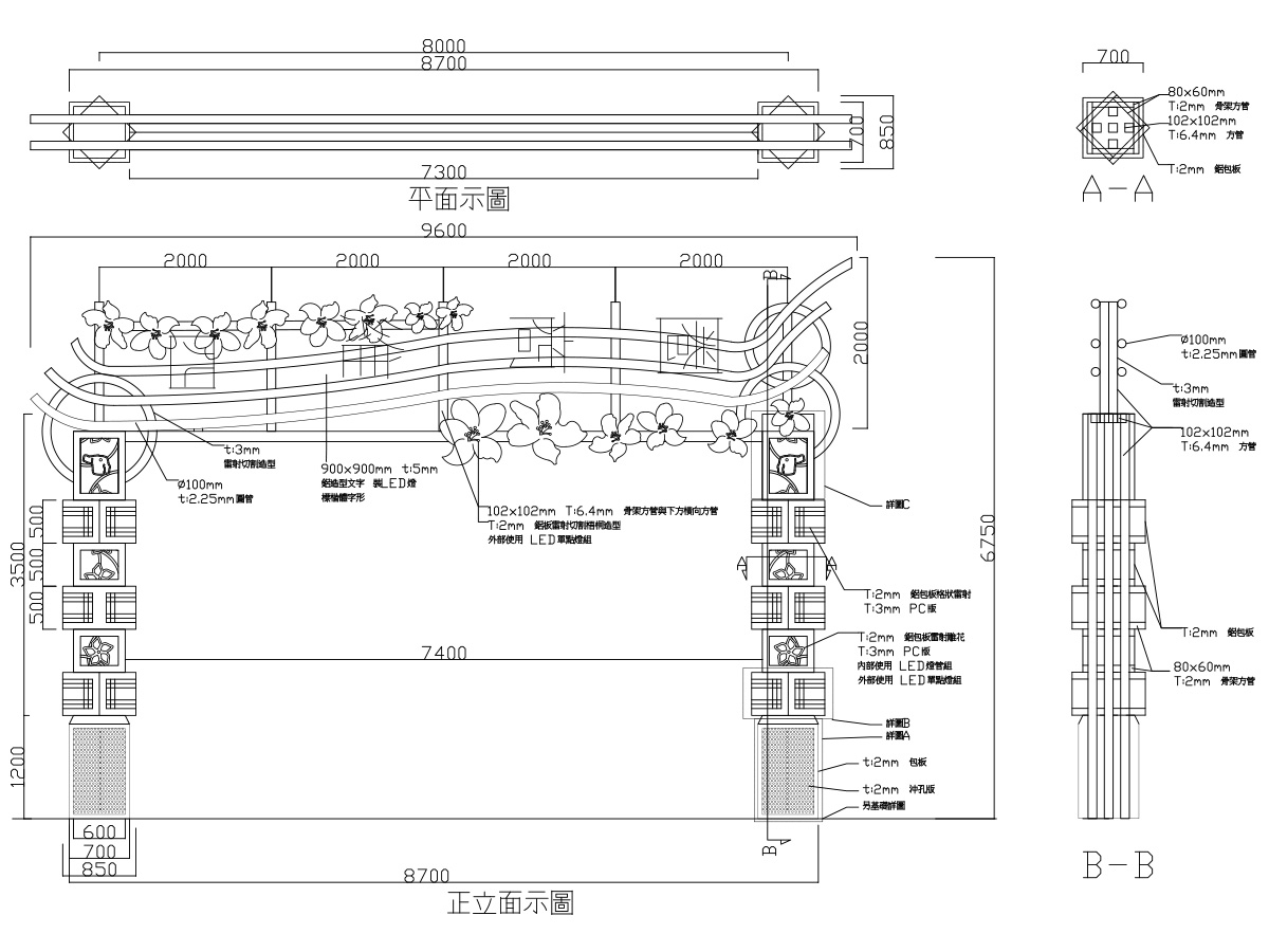
T 楊梅入口意象
Home
特殊專案
T 楊梅入口意象
於永美路與四維路口設置"龍行天下"入口意象一座
文化街口與四維路路口設置"鳳飛舞"入口意象一座
四維路中段設"市徽車道拼花"一座
成品
廠內焊接-牌樓
廠內焊接-龍&鳳
現場施作
三視圖