TEL:04-23503355 / FAX:04-23502255
繁中
简中
EN
Home
About denya
About Us
Certification
Main business
The paint factory
Project
Modernist-styled
Imitation bamboo
Imitation wood
Sculpture projects
Carbonized bamboo
inclusive playground equipment
Special Project
Video
Contact Us
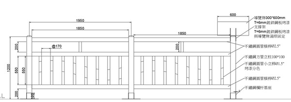
DN-409
Home
Modernist-styled
N. Railing DN-409
Previous Page